循環流化床鍋爐燃用福建無煙煤淺析
摘要: 本文歸納福建無煙煤的固有特性,總結燃用福建無煙煤之DG75/3.82-11型CFB鍋爐的設計特點和運行實踐,分析影響燃燒福建無煙煤的因素,并提出了優化燃燒的措施。
關鍵詞: CFB鍋爐 ;福建無煙煤;優化燃燒;運行效率
一 概述
福建無煙煤揮發份極低、碳化程度高,煤質脆易爆裂,熱穩定性差,細粉含量大,著火和燃燼均十分困難,灰熔點低易結焦。這些固有特性使其在傳統鍋爐上得不到很好的燃燒,熱效率較低,燃燒穩定性差,連續運行時間短,煤粉爐還需摻油助燃和穩燃。如何高效燃用福建無煙煤、提高企業經濟效益一直是廣大工作者努力探索的問題。
我公司在1998年12月投運2×35t/h CFB鍋爐取得成功后,于2000年4月和2001年10月陸續投運2臺DG75/3.82-11型CFB鍋爐。運行實踐和測試結果均表明,4臺鍋爐出力足,燃燒穩定,各項指標均達到或超過設計要求。
本文總結DG75/3.82-11型CFB鍋爐的設計特點及運行實踐,分析影響福建無煙煤燃燒的因素,提出了優化燃燒的措施,對燃用福建無煙煤CFB鍋爐的設計與發展具有參考意義。
二 鍋爐結構技術特點
(一) 主要技術規范
額定蒸發量 75t/h
過熱蒸汽壓力 3.82MPa
過熱蒸汽溫度 450℃
給水溫度 150℃
熱一、二次風溫度 180℃
排煙溫度 138.5℃
設計熱效率 85%
物料循環倍率 18.22
燃料消耗量 10542Kg/h
鍋筒中心標高: 34000 mm
布風板標高: 4700 mm
爐膛橫截面: 4645 mm×5905 mm
布風板截面: 2501 mm×5905 mm
鍋爐柱中心: (8.86+7.0)×8.2 m
(二)鍋爐結構
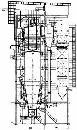
DG75/3.82-11型鍋爐為單汽包自然循環、半塔式布置、中溫旋風分離、全鋼結構爐架的中倍率CFB鍋爐(見圖1)。
鍋爐為室外露天布置,由前部及尾部兩個豎井煙道組成。前部豎井采用全懸吊結構,受熱時向下自由膨脹,其四壁由膜式水冷壁組成,前后墻水冷壁自標高+11787mm以下呈倒錐形。前部豎井自下而上依次布置一次風室、布風裝置、爐膛密相區、稀相區、蒸發管束、高溫過熱器、低溫過熱器及煙氣轉向室。尾部豎井為支承結構,布置有省煤器和鋼管式臥式空氣預熱器。兩豎井之間通過兩個并列布置的旋風分離器相連通,分離器下部接回料裝置。
圖1 DG75/3.82-11型 CFB鍋爐主視圖 |
(三)鍋爐設計特點
DG75/3.82-11型鍋爐除了具備CFB鍋爐的通常特點外,尚具有以下設計特點:
1無受熱面的中溫旋風分離器
該分離器直徑較小,分離效率較高,可提高燃燒效率;回料溫度低于煤著火溫度,不存在分離器內燃燒結焦等問題,有利于鍋爐安全、連續運行。并且,該分離器不需采用特殊材料,制造工藝簡單,成本低。
2風道點火器
在風室底部一次點火風道上并聯布置風道點火器,供鍋爐點火啟動用。它具有較大的調節比,大大地縮短鍋爐啟動時間,熱利用率高,操作簡單靈活的特點。
3水冷風室
一次風室由水冷壁管彎制圍成,管間鰭片上布置導向風帽,形成膜式水冷布風板。水冷風室整體膨脹性好,易于密封,便于維護。
4非機械式“J”型回料器
單獨由高壓頭小風量羅茨風機供給的回料風多點布置,保證回料可靠,負荷適應范圍廣,并具有良好的自適應能力,操作簡便。
5風力播煤結構
采用增壓風氣力播煤,克服了絞籠給煤易棚煤、堵煤的缺點,解決了正壓給煤的密封難題,又能將煤均勻播散,有利于燃料的迅速加熱和著火,并易于實現燃料系統的精確計量和自動控制。
6采用分級燃燒
二次風分為上下兩層從前后墻高速射入爐膛,提高空氣與煤粒的接觸機率,增加煤粒在爐內的停留時間,強化稀相區細煤粒及可燃氣體的燃燒,有利于煤粒的燃燼,并且可降低NOx的排放量。
7爐膛上部布置受熱面
布置在爐膛上部的蒸發管束、高溫過熱器、低溫過熱器等受熱面,有效地吸收燃料燃燒釋放的大量熱能,讓更多的細顆粒參與循環燃燒,將密相區的大量熱量源源不斷地從爐膛底部帶到上部,保持爐膛中上部較高的物料濃度以及較大的燃燒份額,有利于煤粒的燃燼[1]。
8敷設長衛燃帶
在爐膛標高4700~18500 mm之間敷設13.8m高的衛燃帶,使燃料在密、稀相區處于近似絕熱狀態下燃燒,保證了爐膛內有分布均勻的950~1020℃燃燒溫度,而此正是福建無煙煤燃燒的較適宜溫度[2],煤粒燃燼度高,機械不完全燃燒熱損失q4低。
(四) 燃料特性
表1 設計燃料與實際燃料特性
|
設計燃煤推薦粒度范圍:0~8mm。其中99%≤6mm,50%≤1.5mm,30%≤1mm。設計燃煤平均粒度:dp=1.769mm。
實際入爐煤粒度范圍為:0~13mm。其中94.67%≤10mm,80.81%≤5mm,62.62%≤2mm,44.68%≤0.9mm。實際入爐燃煤平均粒度:dp=2.498 mm。
三 運行實踐分析
(一)運行情況
1 燃料適應性廣
我公司鍋爐主要燃用福建龍巖無煙煤,當煤炭相對緊張時,公司通過不同渠道購進龍巖、永定、天湖山等地無煙煤以及京西無煙煤,例如2002年5月份購進的煤種達到12種。運行實踐證明,該鍋爐對低位發熱量在13.58~27.46 MJ/kg、固定碳含量在35.8%~86.14%、灰份含量10.42%~58.90%范圍內的煤種均能燃燒并能保持正常負荷,但以低位發熱量為22MJ/kg左右的龍巖無煙煤最好燒,運行效率也最高。
2 負荷調節性能好
在CFB鍋爐中,大量物料在強烈湍流下通過爐膛對受熱面放熱,通過人為調節循環物料量可以改變爐內物料的分布規律,從而改變傳熱強度以適應不同的燃燒工況和鍋爐負荷,所以負荷調節性能好、幅度大,在保證穩定、連續運行的情況下,該爐最大出力可達92t/h,最低出力小于40t/h而無需油助燃。
3 熱效率高
該爐在設計時針對福建無煙煤提高了爐膛高度,即布風板至煙氣出口轉向室中心垂直高度為25.58m,煤粒在爐膛內停留時間達到5s[3];較高的爐膛燃燒溫度適宜福建無煙煤燃燒,煤粒燃燼度高,從而達到較高的運行效率。兩臺75t/h爐2002年平均熱效率達到84.36%,月度平均運行效率為83.29~85.38%(圖2),比同容量燃用福建無煙煤的煤粉爐高出3~5%以上[4],實現了福建無煙煤的高效燃燒。
圖2 2002年度鍋爐月平均效率柱形圖 |
2000年8月,四川省鍋爐產品質量檢測站對3號爐進行性能試驗,各項指標均達到設計要求,100%額定負荷試驗工況下鍋爐熱效率均在86%以上,75%額定負荷工況下熱效率達到87.33%。
4 燃燒系統密閉性較好
該爐采用全膜式水冷壁、水冷布風板結構和護板爐墻,以及所有管道穿墻部分都有合理的密封結構,在燃燒室爐門內加耐火塞、爐膛上部爐門處砌耐火墻,確保鍋爐燃燒系統密閉良好。在省煤器后測得的煙氣中空氣過量系數為1.24~1.32,與設計值相符,即減少了排煙熱損失q2,也保持了清潔的生產環境。
5 爐內受熱面和砌體磨損基本正常
由于CFB鍋爐高顆粒濃度和高運行煙速,鍋爐部件的沖刷磨損問題較為突出。研究表明,磨損與煙速的3.6次方成正比,與濃度成正比[5]。該爐在設計時選取了適當的煙氣流速(3.8~4.0m/s),對蒸發管束、高溫過熱器、低溫過熱器等迎風受熱面設有防磨片,在落煤口、回料口和二次風口都采取了有效的防磨措施,在爐膛密相區爐墻和爐膛頂部水冷壁處均采用了較好的耐火防磨材料。運行以來,上述部分的磨損輕微,沒有發生爆管或防磨材料脫落而造成故障停爐。
6 安全可靠性強、連續運行時間長
4年多的運行實踐表明,該型鍋爐燃燒穩定,安全可靠,運行情況良好,年運行時間均在7000h以上,可用率超過93%。其中3號鍋爐曾連續運行2934h(無壓火),創造了燃用純福建無煙煤CFB鍋爐連續、安全運行的最好業績,達到了75t/hCFB鍋爐連續、安全運行的較高水平。
7 污染物排放低
CFB鍋爐的低溫燃燒、分級送風的特點,能夠抑制熱力型NOx的形成,數次實測NOx排放濃度均小于150mg /m3(標態,干基,6% O2),不到煤粉爐的20%。同時,加石灰石爐內脫硫是投資最省、成本最低的方法。與國電熱工研究院、集美大學聯合進行的工業試驗結果證明,在Ca/S約為3時,脫硫效率為66%,比DG35/3.82-17型CFB鍋爐提高了12%,能滿足較嚴格的SO2排放標準。同時配置高效的靜電除塵器,石獅市環保局實測除塵效率高達99.9%,粉塵排放濃度小于30mg/Nm3,低于國家排放標準。
(二)提高鍋爐熱效率的措施
燃用福建無煙煤的鍋爐,熱效率普遍不高,主要原因為:福建無煙煤揮發份低、含碳量高,燃燼時間長;細粉含量大,造成飛灰可燃物含量高,機械不完全燃燒熱損失q4大。
降低q4,是提高鍋爐熱效率的關鍵。我公司采取下列措施,將75t/h鍋爐飛灰可燃物含量控制在較低的范圍內(相對福建無煙煤而言),q4為7.5~8.5%,比DG35/ 3.82-17型CFB鍋爐降低了約3個百分點。
1 適宜的運行煙速
正常運行時,爐膛煙速控制在適宜的水平(3.7~4.1m/s),即可保證床料流化良好,維持密相區的燃燒份額,又保證了煤粒在爐膛內停留時間長達5秒,提高細顆粒的一次燃燼度。
2 維持較高的爐內溫度
實踐表明,爐床料層溫度維持在950~1000℃(設計值為820~930℃),爐膛出口溫度控制在1000℃左右,整個爐膛維持均衡的高溫,能加大揮發份的析出速度,加快煤粒的著火及燃燒,提高煤粒在整個爐膛內的燃燒強度。
3 適當的風配比
二次風能加劇爐內物料的擾動,加強氣固兩相的混合,增加煤粒在爐內的停留時間,強化稀相區細煤粒及可燃氣體的燃燒,并改變爐內物料濃度的分布,防止局部煙氣溫度過高。額定負荷時,一次風率控制在55~60%,上下層二次風比為55:45~60:40,省煤器后煙氣含氧量控制在4~5%,可達到較佳的燃燼效果。
4 適當的料層厚度
密相區料層厚度對燃燒的穩定性和燃燒效率有很大關系。料層厚,爐床蓄熱量大,床溫穩定,煤粒和回料灰能迅速加熱和燃燒。但料層太厚則風壓高、耗電量大,并可能影響流化效果和燃燒效率[6]。運行實踐證明,一次風室壓力控制在10~11KPa時效果最為理想。
5 確保回料暢通
物料的正常循環是CFB鍋爐安全、可控運行的前提。正常運行時,配風嚴格按照要求,回料溫度維持在540~560℃(設計值552℃),與分離器進口煙溫基本同步,從而保證爐內有較高的物料濃度和燃燒強度。
(三)目前存在和有待于解決的問題
1 風室漏渣問題
每次停爐檢查,風室內均有漏渣。漏渣是床料反向穿越布風板風帽而造成的。鍋爐連續運行時間越長,漏渣越多,阻力越大,一次風機的出口壓力和電流也隨之增大。在運行中,這些床料不能及時排除,被一次風吹起,可能將風帽堵死燒壞。
2 返料偏流現象
返料偏流現象主要表現在:停爐時分離器兩側料位偏差較大;運行中爐膛左右側存在熱偏差,有時超過80℃;兩側旋風分離器中心筒磨損情況有較大差別。
3號爐調試期間,曾出現過熱蒸汽超溫現象,影響鍋爐出力。根據鍋爐廠建議,我們把低溫過熱器面積割除75.2m2,占低溫過熱器總面積的24.5%。但是鍋爐低負荷運行時(55t/h以下),過熱蒸汽溫度有時偏低,一般在415~430℃,若煤質較差汽溫會低于410℃。這主要是燃料顆粒度分布和煙氣物料濃度發生變化,影響過熱器傳熱效果而造成的。
四 影響福建無煙煤燃燒的因素
(一)原煤粒度分布不均
原煤細粉含量所占比例過大(粒徑小于0.9mm粒子重量百分比為44.68%),加上煤粒在揮發份析出階段破碎和燃燒過程磨損、擠壓又產生大量細粉。一方面造成以揚析夾帶形式離開床層的細顆粒增多,在一定程度上降低了燃燒效率;另一方面造成爐膛密、稀相區的燃燒份額較難控制,易出現床溫及爐膛溫度的波動,影響燃燒的穩定性,嚴重時在爐膛中上部衛燃帶形成掛焦。
(二)細粒徑粒子的分離效率不高
從電除塵飛灰的篩分特性(表2)不難看出,分離器對細粒徑粒子(d≈105μm)的分離效率較低,電除塵飛灰中粒徑d≥105μm的粒子重量百分比達到71.65%,而這部分粒子的一次燃燼度不高,這正是鍋爐q4高的主要原因。若這部分細粒子的燃燼度提高了,鍋爐熱效率可提高2~4個百分點,達到87~89%。
表2 電除塵飛灰篩分特性和可燃物含量
|
(三)灰量不平衡問題
由于入爐煤細粉含量大,加上實際燃用燃料的灰分含量與設計燃料相差較大,分離器收集的灰量無法全部返回爐膛再燃燒(否則床溫無法維持或過熱蒸汽超溫),就出現了較嚴重的灰量不平衡問題,其后果為:
①多余的灰隨煙氣直接從分離器排到尾部煙道,這從表2中可以看出,而磨損與粒徑的平方成正比,與濃度成正比[3],分離器和尾部受熱面受到濃度較高的含塵氣流的沖刷而磨損嚴重;
②部分含碳量高的顆粒沒有參與循環燃燒,使電除塵飛灰平均含碳量在20%左右,q4高達7.5~8.5%,高于6.27%的設計值;
③靜電除塵器的入口飛灰濃度增大,耗電量增加。
五 優化福建無煙煤燃燒的措施
(一)煤質選擇
CFB鍋爐對燃料適應性廣,但并非具體的某臺CFB鍋爐對所有煤種都能燒好。若煤種及其發熱量、水分變化大時,鍋爐燃燒工況不易穩定,司爐操作困難;若燃煤變形溫度DT低于1100℃,則可能發生結焦事故。實踐證明,我廠鍋爐燃用低位發熱量22MJ/kg左右的龍巖無煙煤(設計煤種)運行效率最高。
因此,為保證鍋爐燃燒穩定和較高的效率,CFB鍋爐在設計和運行時對煤質應有所選擇。
(二)合適的燃料粒徑配比
為降低飛灰q4,應盡量提高煤粒的一次燃燼率,尤其提高分離器不能捕捉下來的細小煤粒的燃燼度。因此,在采購燃料時要盡量配備一些塊煤,做到粗細搭配;在制備燃料過程中優化篩分破碎系統,避免二次破碎,以減少那些分離器分離不下來的超細粒子的比例,對提高燃燒效率至關重要。
其次,可采取優化燃燒方式,在保證床料流化良好、燃燒強度正常的情況下,適當減小一次風率、增大二次風量尤其增大上二次風量以延長煤粒在爐膛內的停留時間,提高燃燼率。
(三)分離效率和回料溫度
為使CFB鍋爐達到較高的燃燒效率,旋風分離器至少應把絕大部分粒徑大于100μm的粒子收集下來參與循環燃燒。為了提高對細粒子的分離效率,除了完善分離器結構外,設計時可以考慮采用二級分離布置等手段。
分離效率的提高,意味著有更多的物料參與循環燃燒。大量物料返回高溫爐膛需要加熱升溫吸收爐床熱量,為不使料層溫度大幅度降低而影響燃燒,回料溫度應達到750~800℃,即選用次高溫分離器。這樣既有效地避免了可燃物在分離器內再燃燒引起結焦,又能使回料灰在爐膛內迅速加熱和燃燒,從而提高燃燒效率。同時,還可以解決由于灰量不平衡所帶來的一系列問題。
若采用次高溫分離器,爐膛溫度以及物料濃度、燃燒強度等都會發生變化,在設計時應充分考慮這些因素,調整過熱、蒸發受熱面積及布置,尾部受熱面積也需作相應調整,以保持正常的蒸汽溫度和合理的排煙溫度。
六 結束語
目前,燃用福建無煙煤CFB鍋爐的出力和燃燒穩定性已基本得到解決,運行效率也顯著提高,DG75/3.82-11型CFB鍋爐的運行實踐充分證明了這一點。隨著CFB燃燒技術的不斷完善和運行操作水平的不斷提高,CFB燃燒技術將從本質上實現福建無煙煤的高效利用及清潔燃燒。隨著能源日趨緊張和環保意識日益增強,相信將出現許多效率更高、容量更大的燃用福建無煙煤的CFB鍋爐。
參考文獻
[1]鄒崢,俞建洪,等.福建無煙煤粒度分布對循環流化床鍋爐燃燒影響的工業實驗[J].工業鍋爐.2002(1):2~5.
[2]浙江大學熱能工程研究所.循環流化床鍋爐燃燒福建無煙煤的試驗研究.1995.10
[3]劉德昌,閻維平.流化床燃燒技術[M].北京:中國電力出版社.1998.
[4]江 楓.提高大型循環流化床鍋爐效率的建議措施[J] .福建熱能動力.2002(14):35~37.
[5]岑可法,倪明江,等.循環流化床鍋爐理論設計與運行[M].中國電力出版社.1998.
[6]熊正德.提高我省循環流化床鍋爐熱效率探討[J].福建能源開發與節約.1999增刊:9~13.

使用微信“掃一掃”功能添加“谷騰環保網”