山西漳山電廠RCFB煙氣脫硫工程介紹
本文主要介紹漳山電廠的脫硫設計、系統組成、布置以及調試運行數據。漳山電廠脫硫系統成功投運,為大型干法脫硫工程的設計及運行提供了經驗及借鑒。
1、概述
山西漳山發電有限責任公司所建設的山西漳澤發電廠三期擴建工程安裝2×300MW燃煤空冷發電機組,配備二臺由武漢鍋爐股份有限公司生產的1045t/h亞臨界煤粉爐,機組年運行小時數為6000小時。根據環保要求,機組配備尾部煙氣脫硫裝置,與發電工程同步建設、同步投產、同步運行。根據合同要求,脫硫裝置的保證脫硫效率為85%,按合同條件每年可脫除 9258噸(設計煤種)/18516噸(校核煤種)SO2,極大的減少當地的SO2的排放和空氣污染,排放煙氣中的SO2含量將從851mg/Nm3(設計煤種)、1702mg/Nm3(校核煤種)減少至127mg/Nm3(設計煤種)、255mg/Nm3(校核煤種)以下,是改善當地的大氣環境條件的重要保證措施。
武漢凱迪電力股份有限公司所提供的這二套煙氣脫硫裝置,采用德國WULFF Deutschland GmbH(下簡稱德國WULFF公司)先進成熟的回流式煙氣循環流化床干法脫硫RCFB-FGD(Reflux Circulating Fluidized Bed)技術,對脫硫除塵島進行總承包,包括島內的土建、安裝工程的施工圖設計、設備供貨、施工、調試、移交。
本工程于2003年4月份完成初步設計,2003年底完成施工圖設計及設備招標工作; 2004年底和2005年初1、2號主機組分別通過168小時,FGD三個月后順利通過168小時試運行。到現在為止,脫硫系統運行穩定良好。本工程的成功投運,是RCFB脫硫技術在300MW大型燃煤機組的首次應用,為我國火電廠煙氣脫硫工藝的選擇和在大型燃煤機組上的配套,提供了工程示范。
2005年7月份胡錦濤總書記參觀了漳山電廠,他對漳山電廠在國內300MW機組上首家采用空冷、干法脫硫一體化技術,達到了節水、環保的目的表示了肯定。
2、脫硫原理及工藝過程
2.1 脫硫原理
漳山電廠的脫硫劑原料為生石灰粉,通過一套消化系統將生石灰粉制備成消石灰粉。消石灰粉利用輸送系統最終被送到吸收塔內,在塔內發生酸堿中和及氧化反應,脫除SO2等酸性物質。Ca(OH)2粉末和煙氣中的SO2、SO3、HCl、HF等,在Ca(OH)2粒子的膜相表面發生反應,在煙氣循環流化床內,Ca(OH)2粉末,煙氣及噴入的水分,在流化狀態下,充分混合 ,并通過Ca(OH)2粉末的多次再循環,使實際反應的Ca/S比遠遠大于表觀的Ca/S比,從而實現高效脫硫。
吸收塔內主要反應
* Ca(OH)2 + SO2 = CaSO3+ H2O
* Ca(OH)2 + SO3 = CaSO4 + H2O
* CaSO3+ 1/2O2 = CaSO4
* Ca(OH)2+ CO2 = CaCO3 + H2O
* Ca(OH)2 + 2HCl = CaCl2 + 2H2O
* Ca(OH)2 + 2HF = CaF2 + 2H2O
2.2 工藝流程
鍋爐燃燒后排出的煙氣通過空氣預熱器出口,進入第一級靜電除塵器ESP1預除塵。除塵器捕捉下來的灰輸送至電廠灰庫,隨后煙氣從RCFB吸收塔下部兩側引入,與從吸收塔加速器上部噴入的霧化水混合,進到塔中央,反應過程中的煙氣溫度靠噴入的霧化水調節到75℃左右,RCFB噴射系統將由吸收劑制備系統提供的合格的吸收劑(合格細度的Ca(OH)2 干粉)噴入RCFB吸收塔,在塔內與煙氣進行脫硫化學反應,反應后的大量的氣--固混合物從吸收塔頂部水平排出,進入第二級除塵器ESP2。ESP2為一臺二室四電場靜電除塵器,它的第一、二電場脫除的固體顆粒在控制閥的調節作用下,通過固體循環系統,返回RCFB吸收塔繼續參與脫硫反應;ESP2第三電場收集下來的物料既可返回吸收塔繼續參與反應,也可被輸送到殘渣倉;四電場灰斗下部和RCFB吸收塔下部少量的脫硫渣被輸送到殘渣倉;殘渣倉的脫硫灰渣再由倉泵系統輸送到電廠灰庫。ESP2出口凈煙氣經兩臺引風機引入煙囪后排出。
簡易工藝流程如下圖:
![]() 圖1 脫硫島簡易流程圖 |
3、系統介紹
漳山電廠的脫硫工藝主要包括煙氣系統(含兩級電除塵器)、吸收塔系統(RCFB)、消石灰制備系統(LDH)、灰渣處理系統、電氣系統、控制系統等部分組成。以下就各系統加以簡單介紹
3.1主要設計輸入
* 氣象條件:
* 平均氣壓 908.1 hPa
* 平均氣溫 10.2 ℃
* 平均相對濕度 63 %
* 平均水汽壓 9.2 hPa
* 平均降水量 555.5 mm
* 平均蒸發量 1697.2mm
* 基本風壓 0.41kN/m2
主廠房零米高度(1956年黃海高程)20.50m
|
3.2 煙氣系統
基本流程:空氣預熱器出口煙氣→電除塵器1(ESP1)→吸收塔(RCFB)→電除塵器2(ESP2)→吸風機→煙囪
ESP1為常規電除塵器,經過ESP1預除塵后的煙氣經煙道流進吸收塔內,煙氣在塔內發生脫硫反應,吸收塔出口含高濃度脫硫產物及粉塵的煙氣直接進入后電除塵器ESP2,ESP2為雙室四電場除塵器,ESP2入口煙氣設計含塵量800g/Nm3,經ESP2除塵后的含塵量≤100mg/Nm3,經過兩臺引風機引入煙囪排放。
3.3 吸收塔系統
吸收塔為脫硫系統的關鍵設備,其主要有煙道接口、消石灰粉噴入接口、水接口、回流斜槽接口、脫硫灰渣排放接口。吸收塔直徑為11.2米,高約49米。
消石灰粉通過消化器下端變頻旋轉閥控制給料量,輸送到吸收塔內,與塔內煙氣中的SO2進行脫硫反應,以控制SO2排放量;工藝水通過工藝水泵輸送到吸收塔,來控制吸收塔內的溫度,使反應在最佳溫度下運行,由回水管路上的回流調節閥控制給水量;循環物料由斜槽輸送到塔內,維持塔內差壓,從而保證塔內固體物濃度,物料回流量通過斜槽上的調節閥來控制。
吸收塔內的氣體與固體之間的反應取決于兩個條件,一個是氣體與固體的接觸面積,另一個是氣體在固體表面的停留時間。在氣體速度較低的情況下,氣體通過固體物間的縫隙進入到反應器中,氣體在固體物表面的停留時間很短,非常不利于氣體與固體的反應。而當流速增加到一定程度時,大部分顆粒在氣體的帶動下離開床層,但隨后又回到床層,小部分會被帶到反應器的上部,形成下部密相區,上部稀相區,這種類似于液態沸騰的狀態稱之為鼓泡床。這種狀態固體物表面積較大,但大部分的反應時間較短。進一步加大氣體流速,固體物將會較均勻地分布在整個反應器中,并且靠近壁面還有少量固體物的回流,這時,氣體與固體物接觸時間最長,接觸面積較大。這種狀態就稱之為循環流化床。回流式循環流化床脫硫工藝正是利用這個原理,煙氣從脫硫塔底部以12~18m/s的流速進入,通過脫硫塔內部的加速器后流速約為40~60m/s,這正是塔內形成流化床的理想流速。塔內加速器一般有200傾斜度,水、消石灰和循環灰均從此處進入,煙氣向上流動,回流物料從上往下落,RCFB吸收塔中的煙氣流速被控制在3.5~5m/s較低的速度,這使煙氣停留在吸收塔中的時間可達5秒以上,反應時間較其它脫硫技術大大延長,脫硫效率大大提高。出塔后的固體物被收集下來再回送到反應器中進行循環,進一步延長了固體物的反應時間,加上固體物之間的碰撞、磨擦,會暴露出固體物的新表面,有利于固體物的利用率。氣固停留時間約有10倍差別,為了保證接觸時間達到半個小時,一般回流次數在100~150次,這樣就可以充分保證了流化床的形成和脫硫效率的提高。
回流式煙氣循環流化床(RCFB)的獨特設計使其具體以下主要特點
(1) RCFB除了具有優良的傳熱、傳質特點外,因在塔的頂部區域加裝了導流板,在塔內加裝了紊流裝置,加上外部循環,延長了脫硫劑的停留時間,加大了固體物的碰撞、摩擦,從而提高了脫硫劑的利用率。
(2) 由于脫硫劑的利用率高,它所產生的脫硫灰(渣)也最少。
(3) 煙氣在塔內的停留時間達5秒以上,使SO2與脫硫劑能得到充分的混合,提高了脫硫效率,且99%以上的脫硫反應均在塔內完成。
(4) 較低的塔內流速使塔內不易產生磨損。
(5) 因脫硫劑為干態,床溫只取決于噴水量的多少,不受進口煙氣中SO2濃度的制約,能非常方便的將床溫控制在理想狀態,防止床溫偏低時設備的腐蝕,偏高時脫硫效率及脫硫劑利用率的下降。
(6) 塔內優良的混合條件,使塔內的水分迅速蒸發,所以,脫硫塔及其它設備不會產生粘結和堵塞,也不會產生腐蝕。
(7) RCFB轉動部件少,整個裝置可用率高。
(8) 在煤的含硫量適當增加或要提高脫硫效率時,無需增加任何設備,僅增加脫硫劑就行了。
3.4 消石灰制備系統
基本流程:罐車→石灰倉→生石灰日用斗→消化器→旋風分離器1→旋風分離器2→消石灰倉
生石灰粉通過密封罐車輸送送到石灰倉,使用一臺羅茨風機使石灰倉料斗的石灰處于流動狀態,石灰倉下料的石灰再由輸送空氣噴入消化器中,在消化器內與一定量的霧化水混合,發生化學反應 :
CaO + H2O = Ca(OH)2
消化器床溫受到嚴格控制,以控制反應后消石灰中水的含量。反應后的氣粉混合物離開消化器,再經過第一級旋風分離器,將大顆粒回送到消化器中繼續消化。帶細顆粒的Ca(OH)2的混合物再經過第二級旋風分離器將Ca(OH)2粉末分離出來送至消石灰倉待用,尾氣直接引入脫硫塔,消除污染。此套消化系統也采用了循環流化床技術,使得Ca(OH)2粉末的表面積達18~20m2/g(其它消化裝置為12~14m2/g),加大了SO2、SO3 與Ca(OH)2的接觸面積,既提高了脫硫效率,也提高了吸收劑的利用率。
此系統為引進德國WULFF技術設計制造,原外方要求石灰品質較高,對CaO含量及消化速度均有較高要求。根據中國國情,符合上述品質的石灰一般必須是工業石灰,各地價格相差很大,而且均非常昂貴,各地較便宜的是建筑用石灰。凱迪公司在非常困難的情況下對此系統完善改造,最終在石灰品質非常差(CaO含量低,消化速度低)的情況下,通過此裝置生產出來的消石灰品質仍能滿足脫硫需要。
3.5 灰渣處理系統
本脫硫除塵島有三處會產生灰、渣排放,即第一級電除塵器(ESP1)下除塵灰、RCFB吸收塔下脫硫灰和第二級電除塵器(ESP2)脫硫灰。ESP1收集的為常規粉煤灰,吸收塔及ESP2灰斗收集為脫硫灰。三處產生的灰渣通過倉泵系統把灰渣輸送至灰場儲存。漳山電廠的除灰系統不在本工程中。
RCFB煙氣脫硫技術吸收劑為鈣基化合物,脫硫渣中的主要成分為CaSO4、CaSO3等。CaSO4和CaSO3都是化學性質比較穩定的無毒物質,不會對環境造成危害。
脫硫渣的密度在500kg/m3至900 kg/m3之間,呈干粉狀,可方便地采用氣力輸送或罐車輸送。這是干法工藝的優點。RCFB法煙氣脫硫的脫硫渣是一種灰白色干燥的微粒狀粉末,其流動性與易液化性與飛灰相似。
在國外,干法脫硫渣已在不同的領域中得到利用。
3.6 電氣系統
0.38kV配電系統采用PC(動力中心)一級供電方式。每臺爐脫硫單元設3個低壓PC段。脫硫PC段由脫硫變供電,該段為單母線分段接線,向相應機組脫硫裝置及1號電除塵器電負荷供電。除塵PC段由除塵變供電,該段為單母線分段接線,向相應機組2號電除塵器電負荷供電。備用PC段由備用變供電,該段為單母線接線,向脫硫PC段及電除PC段提供備用電源。正常時脫硫PC段、除塵PC段各段的分段開關閉合,由相應段的工作變供電,事故時工作變退出,備用變自動投入供電。脫硫除塵島內不設保安柴油發電機組,脫硫用交流不停電電源(UPS)的一路保安電源由業主負責提供至UPS裝置處。75kW及以上的電動機回路、大容量饋電回路采用空氣斷路器,75KW以下的電動機回路、小容量饋電回路采用塑殼斷路器。
3.8 控制系統
本工程的RCFB脫硫工藝的控制系統較其它的干法、半干法脫硫技術簡單。它的控制主要通過三個部分實現。
(1) SO2排放量和消石灰給料量的控制
根據脫硫反應塔入口和出口煙氣中SO2、O2濃度和煙氣流量以及脫硫率來控制消石灰粉的給料量,以確保煙氣排放中SO2的含量達到標準。消石灰粉的給料量的調節采用變頻調節旋轉閥,通過調節旋轉閥的轉速來調節給料量。
(2)循環流化床床壓與物料回流量控制
循環流化床內固體物濃度是保證脫硫塔良好運行的重要參數。脫硫塔內固體物濃度可以通過沿床高度底部和頂部的壓差ΔP來表示。床的壓力損失越大,表示固體物濃度越大。因而根據沿床高度底部和頂部的壓差ΔP來控制吸收塔進口灰的回流量,將ΔP控制在一定范圍之間,從而保證了床內必需的固/氣比,使吸收塔始終處于良好的運行工況。其調節方法是通過調節除塵器再循環斜槽的給料量,以控制送回反應器的再循環干灰量,來控制壓差ΔP,從而保證床內必需的固/氣比。
(3)脫硫煙溫和噴水量的控制
通過反應塔頂部煙氣設定溫度與入口煙氣溫度的函數、煙氣流量函數之差與高于露點溫度15ºC比較取較大值,再與RCFB水箱水溫溫差的函數計算的數值作為主要控制,以反應塔頂部煙氣溫度與設定溫度的PID 調節作為微調得出的結果作為噴水量的設定值,以四個噴嘴噴水總量作為過程值來控制噴水量。以確保反應器內的溫度和水量處于最佳范圍內。噴水量的調節方法一般采用回水調節閥,通過調節回流水量來調節噴水量。
這三套控制互相獨立,不產生相互影響,這保證RCFB-FGD能夠在鍋爐不同的負荷范圍內變動時,獲得穩定的脫硫效率。
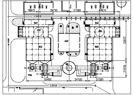
4、工程總體布置
本工程在鍋爐尾部送風機室與煙囪之間留有脫硫裝置的空地,在此空地四周有環形馬路,脫硫裝置按煙氣流程順流布置,沿從送風機室至煙囪方向依次布置預除塵器ESP1、RCFB吸收塔、脫硫除塵器ESP2及吸風機。脫硫島的集控樓布置在兩套裝置中間的場地上。
石灰倉、消石灰倉和消石灰制備系統就近布置在脫硫塔外側,以利于設備之間的管道聯絡,同時有利于吸收劑來料罐車卸料倒車用,還考慮了脫硫除塵島整體布置的美觀。
其它水箱、水泵、風機等布置在吸收塔及除塵器下部零米區域,即考慮就近原則,又留有空間檢修維護,還兼顧整體布置美觀。
控制室28000×24000,面積672m2,二層布置脫硫系統及除灰系統的電氣柜、控制柜以及控制室,并布置一電纜夾層。
脫硫島總布置簡圖見圖2
![]() 圖2 脫硫島總布置簡圖 |
5、主要性能參數
表6:168期間主要運行參數
|
6、結束語
本工程是RCFB脫硫技術首次在300MW燃煤機組上的應用,其最終的順利投運,以及凱迪后續的彭城項目及新海項目的成功投運,說明RCFB脫硫技術在300MW機組上運行是穩定可靠的,并且該項技術也是成熟的。

使用微信“掃一掃”功能添加“谷騰環保網”