習水發電廠脫硫系統
1 脫硫工藝
習水發電廠4×135MW機組煙氣脫硫系統采用石灰石-石膏濕法脫硫工藝。
2 化學反應原理
石灰石-石膏濕法煙氣脫硫技術的主要脫硫工藝原理是利用SO2在水中具有良好的溶解性并引起一系列連鎖反應的特點,通過大量的石灰石漿液洗滌煙氣的方式除去煙氣中大部分的SO2,達到降低煙氣中SO2濃度的目的,從脫硫機理上來看,其主要反應過程包括石灰石的溶解、SO 2等污染物的吸收并生成亞硫酸鹽、亞硫酸鹽氧化生成石膏。
1) 石灰石的溶解
噴入吸收塔的石灰石漿液在酸性條件下溶解為碳酸氫鈣:
CaCO3+CO2+H 2O→Ca(HCO3)2
2) SO2及其他污染物如HCl和HF吸收,生成亞硫酸鹽。
在吸收塔噴霧吸收區,石灰石溶解生成的Ca(HCO3)2與SO2、HCl、HF反應:
Ca(HCO3)2+SO2→Ca(HSO3)2+CO2
Ca(HCO3)2+2HCl→CaCl2+CO2+2H2O
Ca(HCO3)2+2HF→CaF2+CO2+2H2O
3) Ca(HSO3)2氧化成石膏
在吸收區生成的Ca(HSO3)2在吸收塔漿池氧化區被氧化成CaSO4,然后結晶生成石膏CaSO4•2H 2O:
Ca(HSO3)2+O2+CaCO3→2CaSO4+H 2O+CO2
CaSO4+2H 2O→CaSO4•2H 2O
3 工藝流程介紹
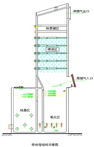
鍋爐引風機出口的煙氣經原煙氣擋板由增壓風機升壓后經煙氣再熱器(GGH)降低溫度,從吸收塔中部進入吸收塔,并在吸收塔內進行自下而上的流動;而吸收塔內的石灰石漿液由漿液循環泵不斷打入吸收塔上部噴淋層,通過噴嘴霧化噴入吸收塔,分散成細小的液滴并覆蓋吸收塔的整個斷面。這些液滴與塔內煙氣進行充分的逆流接觸,煙氣中有害成份SO2、SO3及HCl、HF等有害成分與漿液中CaCO3互相反應而被從煙氣中脫出。吸收塔下部漿池中不斷鼓入氧化空氣,將吸收反應產物Ca(HSO3)2氧化成CaSO4•2H 2O(石膏)。經洗滌后的后的煙氣依次經過吸收塔上部的二級除霧器除去霧滴后從吸收塔頂部排出,經煙氣再熱器加熱升溫至80℃以上,經煙囪排入大氣。
為保證FGD系統故障停運時鍋爐煙氣的正常排出,煙氣系統配置有旁路及旁路煙氣擋板,遇非正常情況下可及時開出旁路煙氣擋板,保證煙氣正常流通,保障機組安全運行。
吸收塔漿池內的脫硫產物-石膏(CaSO4•2H 2O)漿液由石膏排出泵抽出,送往石膏旋流器進行濃縮分離。分離后的頂部稀流經回收水系統返回吸收塔進行再利用,底部含水約40%左右石膏漿液進入真空皮帶機進行脫水處理,最終形成含水約10%的石膏送往石膏倉貯存外運。
為了維持吸收塔內漿液的CaCO3含量,保證脫硫效果,石灰石漿液由石灰石漿泵連續補入吸收塔;合格的石灰石漿液由石灰石進料及制漿系統磨制后在石灰石漿液箱內貯存待用。
吸收塔內布置有脈沖懸浮攪拌系統,防止漿液沉積并能使石灰石和氧化空氣在漿液中的均勻分布和溶解。
4 吸收塔設計特點
我廠脫硫系統采用平分區方形吸收塔設計,在一個吸收塔內完成煙氣除霧、SO2吸收、亞硫酸鈣氧化、石膏結晶四大功能。與傳統的鋼結構圓柱形吸收塔相比有以下特點:
![]() |
1) 吸收塔外形是方形的,結構材料選用全混凝土。
2) 在方形吸收塔中,由于煙氣進口煙道和吸收塔本體可以做到等寬設置,因此進口煙道的自身高度可以大幅度降低(煙道的寬、高比明顯降低),致使吸收塔本體高度降低,從而降低了漿液循環泵的壓頭和能耗。
3) 由于吸收塔為方形結構,煙氣進口煙道和吸收塔本體可以做到等寬設置,因此避免了煙氣流動的死角,使煙氣在吸收塔縱、橫方向上更易做到分布均勻。
4) 吸收塔漿池采用水平分區,該漿液池分隔為氧化區和結晶區,并且氧化區和結晶區水平分布。氧化區位于吸收塔吸收區域的正下方,結晶區位于氧化區的一側。提高了曝氣氧化效果和產物結晶效果,同時降低了漿液池高度。
5) 吸收塔漿池采用射流攪拌系統,該攪拌不需連續運行,所需的啟動負荷低,攪拌能量集中,使用壽命長。
6) 吸收塔的噴淋主管道布置在塔外,噴淋主管不必采用耐外襯膠鋼管,只需在管道內部襯膠即可,減少工作量。

使用微信“掃一掃”功能添加“谷騰環保網”