Y45H/Y杠桿式蒸汽減壓閥結構特點
本系列減壓閥主要由閥體、閥座、閥瓣等零件組成,采用雙閥座、雙錐體閥瓣的結構。采用壓力平衡式閥瓣、升降調節。其調節機構采用扛桿式,可配用DKJ型或其它型角行程電動執行器,實現遙控和自動控制。
杠桿式蒸汽減壓閥的減壓比用到0.6較為合適。
杠桿式蒸汽減壓閥主要用于蒸汽管路,調節壓力。廣泛應用在熱電聯產、輕紡、印染、石化、制糖等行業。
杠桿式蒸汽減壓閥主要技術參數和性能指標
公稱壓力(Mpa) |
1.6 |
2.5 |
4.0 |
6.4 |
10.0 |
16.0 |
殼體試驗壓力(Mpa) |
2.4 |
3.75 |
6.0 |
9.6 |
15.0 |
24 |
密封試驗壓力(Mpa) |
1.76 |
2.75 |
4.4 |
7.04 |
11.0 |
17.6 |
最高進口壓力(Mpa) |
1.6 |
2.5 |
4.0 |
6.4 |
10.0 |
16.0 |
出口壓力范圍(Mpa) |
最佳減壓比0.6 |
滲漏量 |
0.5%QMax |
溫量-壓力等級 |
ANSI B16.34 |
零件名稱 |
零件材料 |
閥體 閥蓋 底蓋 |
WCB |
閥座 |
304 |
閥瓣 |
2Cr13 |
閥桿 |
2Cr13 |
墊片 |
柔性石墨/1Cr18Ni9 |
導向套 |
2Cr13 |
填料 |
柔性石墨 |
螺栓 |
35CrMoA |
螺母 |
45 |
DN |
50 |
65 |
80 |
100 |
125 |
150 |
200 |
250 |
300 |
350 |
400 |
500 |
Cv |
20 |
25 |
50 |
60 |
70 |
110 |
150 |
230 |
420 |
540 |
710 |
1020 |
|
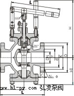
公稱通徑DN |
外 形 尺 寸 |
L |
L1 |
H |
Hl |
l |
50 |
300 |
150 |
520 |
190 |
565 |
65 |
340 |
170 |
540 |
205 |
650 |
80 |
380 |
190 |
550 |
215 |
650 |
100 |
400 |
215 |
580 |
240 |
800 |
125 |
430 |
225 |
620 |
275 |
800 |
150 |
450 |
230 |
650 |
320 |
800 |
200 |
500 |
260 |
790 |
340 |
800 |
250 |
550 |
285 |
850 |
370 |
800 |
300 |
750 |
395 |
940 |
460 |
900 |
350 |
850 |
445 |
990 |
530 |
900 |
400 |
950 |
550 |
1120 |
660 |
1000 |
500 |
1130 |
680 |
1660 |
800 |
1000 |
杠桿式外形尺寸(PN6.4-16.0) |
單位:mm |
公稱通徑DN |
外 形 尺 寸 |
L |
L1 |
H |
Hl |
l |
50 |
300 |
150 |
520 |
200 |
565 |
65 |
340 |
170 |
540 |
215 |
650 |
80 |
380 |
190 |
550 |
225 |
650 |
100 |
400 |
215 |
580 |
250 |
800 |
125 |
430 |
225 |
620 |
285 |
800 |
150 |
450 |
230 |
650 |
330 |
800 |
200 |
500 |
260 |
790 |
355 |
800 |
250 |
550 |
285 |
850 |
390 |
800 |
300 |
750 |
395 |
940 |
480 |
900 |
350 |
850 |
445 |
990 |
550 |
900 |
400 |
950 |
550 |
1120 |
700 |
1000 |
500 |
1130 |
680 |
1660 |
820 |
1000 |
|
.jpg) |
.jpg) |
弘凌泵閥公司訂貨須知:
一、①杠桿式蒸汽減壓閥產品名稱與型號②杠桿式蒸汽減壓閥口徑③杠桿式蒸汽減壓閥是否帶附件以便我們的為您正確選型④杠桿式蒸汽減壓閥的使用壓力⑤杠桿式蒸汽減壓閥的使用介質的溫度。
二、若已經由設計單位選定弘凌泵閥公司的杠桿式蒸汽減壓閥型號,請杠桿式蒸汽減壓閥型號直接向我司銷售部訂購。
三、當使用的場合非常重要或環境比較復雜時,請您盡量提供設計圖紙和詳細參數,由我們的弘凌泵閥公司專家為您審核把關。
感謝您訪問我們的網站【弘凌泵閥公司】
如有任何疑問.您可以致電給我們,我們一定會盡心盡力為您提供優質的服務。