上海外環線道路聲屏障的施工及降噪效果
上海外環線(又稱A20公路)全長約98km,跨越6個區,雙向8車道,設計車速80~100km/h,已投入運行。目前高峰車流量約8000輛/h,大型車輛居多,道路邊線處的噪聲高達85~90dB。外環線是上海市中環線和郊環線(A30公路)之間的一條大動脈,對緩解上海的交通擁堵局面起了很大的作用,但其交通噪聲對沿線敏感點的影響也十分突出。原設計已預計到交通噪聲影響,因此采取了低噪聲路面、綠化隔離帶等降噪措施,但仍未達到要求,投訴頗多。設計安裝了不同高度、不同長度、不同型式的道路聲屏障,2007年上半年,通過對外環線道路聲屏障試驗段的實踐,在取得經驗的基礎上,2007年至2008年分一、二期工程,總投資 2億多元,以解決外環線的交通噪聲擾民問題。
上海新華凈環保工程有限公司通過公開招投標,取得了施工安裝單屏長度約3.8km的外環線道路聲屏障的任務。在市公路主管部門的支持和設計單位的指導下,完成了廣順小區段、新梅花苑段和虹莘新村段聲屏障的施工安裝工程。上海市環境監測中心對該路段聲屏障降噪效果的實測表明,工程達到了原設計要求。該段工程已通過國家環保驗收。
1 道路聲屏障的設計要求
1.1 安裝位置
廣順小區段:廣順居民住宅小區位于外環線天山路立交的南側路東。居民樓距外環線車行道邊線約48m,在外環線路東及中間隔離帶東側安裝道路聲屏障,總長約885m,其中路東側聲屏障長×高約為458×6.5(m),路中聲屏障長×高約為427×4.95(m)。
新梅花苑和虹莘新村段:在外環線莘莊立交北部東側,居民住宅距外環線車行道邊線約48m,在外環線的環外側、環中側、環內側安裝總長約2879m的聲屏障,其中環外側長×高約為293×4.5(m),環中側長×高約為 1293×4.95(m),環內側長×高約為1293×6.5(m)。
環中側聲屏障為雙面吸聲,其余均為單面吸聲。道路聲屏障的安裝位置如圖1、圖2所示。
![]() 圖1 外環線廣順小區聲屏障及噪聲測點位置 |
![]() 圖2 外環線新梅花苑和虹莘新村聲屏障及噪聲測點位置 |
1.2 聲屏障設計降噪量及材料選擇
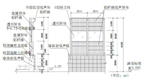
按外環線車流量預測數據,通過德國CADNA噪聲預測軟件計算,敏感點居民住宅處設計要求降噪量為4.3~ 8.7dB,平均降噪量應為7dB左右。外環線交通噪聲的頻譜呈中低頻特性,100~2000Hz聲級都較高,因此隔聲吸聲材料的選擇應符合交通噪聲的特性。本段聲屏障選用鋁纖維和珍珠巖兩種吸聲材料為面板,鋁纖維在500Hz以上有較好的吸聲特性,兩種材料搭配,可達到降噪系數 NRC>0.70的設計要求。聲屏障隔聲部分采用1.2mm厚的鍍鋅鋼板,隔聲量>30dB。聲屏障下部為混凝土防撞墩,面層貼珍珠巖吸聲板,該板隔聲量>26dB。中部透明隔聲屏體作為景觀和視窗,采用5+0.75+5(mm)的夾層安全玻璃,隔聲量>25dB。屏體的基本風壓按 0.60kN/m2 、基本風速按33.8m/s進行設計計算。
1.3 聲屏障的結構型式
根據計算結果,選用H型鋼立柱175×175×7.5×11(mm)和150×150×7×10(mm),立柱連接螺栓為(4-M33和4- M30)C型輕鋼龍骨。屏體基部為2000mm高的鋼筋混凝土防撞墩及基礎(部分屏體基部高為850mm)。屏體頂部為半圓弧型中空吸聲體,用螺栓固定在H型鋼立柱上。
2 道路聲屏障的現場施工安裝
2.1 H型鋼立柱預埋件施工
H型鋼立柱安裝于預埋的底板及螺栓上。底版及螺栓預埋于鋼筋混凝土的防撞墩上,應平整垂直,中心線誤差應小于5mm。底板與防撞墩配筋焊牢,用植筋膠填實空隙,外露的螺栓進行防護處理。預埋底板間距應按屏體尺寸確定,并編號記錄。清除預埋底板上的雜物,螺栓涂潤滑油。
2.2 H型鋼立柱的制作安裝
將符合國標要求的H型鋼立柱按設計尺寸截料,再與固定底版和加強筋垂直滿焊為一體,焊接時采用靠模,以保證垂直度。固定底板上的連接孔應與上述預埋底板上的螺栓尺寸相符,經檢驗合格后再進行防腐處理。H型鋼立柱采用熱浸鍍鋅,鍍層平均厚度大于 80μm,熱鍍鋅后進行靜電噴涂(全亞光),涂層平均厚度不小于50μm。
2.3 金屬屏體及透明隔聲屏的安裝
金屬屏體采用1.35mm厚鋁纖維前面板+93mm厚聯接龍骨(空腔)+1.2mm厚鍍鋅鋼板后面板組合而成。透明隔聲屏是將5+0.75+5(mm)夾膜玻璃嵌裝于 100×52×112(mm)鍍鋅鋼板彎折成的框架內,框架外表面靜電噴涂。H型鋼立柱安裝到位后,利用專用吊裝工具,將屏體吊運到兩相鄰H型立柱的凹槽上慢慢放下嵌入到H鋼立柱的適當高度并調整到位。
2.4 下部珍珠巖吸聲板的安裝
路基段混凝土防撞墩表面安裝帶有裝飾圖案的珍珠巖吸聲板,按珍珠巖吸聲板背面預留的安裝孔的位置,在防撞墩的表面定位并打脹錨螺栓,用定位螺母及聯接螺栓將珍珠巖吸聲板調整到位,再用結構膠將珍珠巖吸聲板粘結在防撞墩墻面上。
2.5 縫隙處理
為防止屏障漏聲,凡有縫隙的地方都用水泥漿填實,屏體之間的空隙用玻璃硅膠填充密實。圖3為聲屏障的結構示意圖。
![]() 圖3 外環線聲屏障結構示意 |
3 聲屏障的效果
3.1 廣順小區聲屏障實測結果
廣順小區24號為六層樓居民住宅,距聲屏障約 48m。在二、四、六層樓上布置監測點(受聲點),實測安裝聲屏障后的A計權聲級。為評價聲屏障的降噪效果,在同一路段的北側未裝聲屏障的金鐘路999號二樓西窗外布置對照監測點,對照監測點距外環線約60m,同步測試的結果列于表1。
![]() |
3.2 新梅花苑和虹莘新村聲屏障實測結果
新梅花苑即報春路4 8 8弄,虹莘新村即虹莘路 1551弄,均在外環線莘莊立交的北面東側。新梅花苑六層樓居民住宅距離聲屏障約48m,虹莘新村也系六層樓居民住宅,距聲屏障約54m,對照監測點選在未安裝聲屏障的虹莘路1935弄7號五層樓居民住宅的窗外。對照監測點距外環線約55m。進行同步測試。實測結果列于表2。
![]() |
實測結果表明,道路聲屏障可使二層樓居民住宅噪聲降低14dB左右,可使四層樓居民住宅噪聲降低12dB左右,可使六層樓居民住宅噪聲降低9dB左右。安裝道路聲屏障之后,外環線兩側居民住宅處晝間可以達到4類區標準規定。晝間由治理前的74dB降為治理后的67dB,比標準要求的70dB低了3~4dB,而夜間四層樓以下噪聲由治理前的74dB左右,降為治理后的65dB以下,夜間噪聲仍有些超標,但比未裝道路聲屏障之前噪聲降低了10dB左右,達到了降噪7dB左右的設計要求,聲環境得到了很大改善,居民基本可以接受。外環線道路聲屏障的設置,得到了各方面的重視和肯定,取得了一定經驗,同時也得到了當地居民的歡迎,可供類似工程參考。
參考文獻:
[1] 馬大猷.噪聲與振動控制工程手冊[M].北京:機械工業出版社,2002.
[2] 呂玉恒,王庭佛.噪聲與振動控制設備及材料選用手冊[M].北京:機械工業 出版社,1999.
[3] GB3096-93 城市區域環境噪聲標準[S].

使用微信“掃一掃”功能添加“谷騰環保網”