生態建筑雨污水ICAST回用處理系統設計研究
水污染及其水資源危機是制約我國當前城市建設可持續發展的重要因素,建立一個比較完善的、經濟高效的生活污水回用處理系統,實現污水就地資源化和無害化,具有重大的社會、經濟和環保價值。生態建筑雨污水回用是上海市科委2003年科技攻關項目專項《生態建筑關鍵技術研究與系統集成》的一個子項目,它主要是對示范工程——上海建科院莘莊園區,包括環境實驗樓在內的幾棟建筑每日所排放出的污水及雨水進行回用處理。在比較目前的國內外主流的幾種污水回用處理技術的基礎上,作者采用了一種裝置集約化程度高、處理能力強、運行方式靈活、自動控制和監測、維護管理方便的改進型SBR——ICAST (Intermittent or Cyclic Activated Sludge Technology,間歇 / 循環活性污泥技術)對生態建筑雨污水回用處理系統進行設計研究,為實施國家建設部和水利部2001年提出的“現代綠色小區40%以上的生活污水經處理后須回用”指標,以及為逐步實現小區污水零排放打下基礎[1~5]。
1 污水回用處理系統設計
1.1 處理裝置
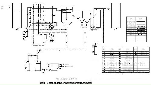
污水回用處理裝置系統如圖1所示,占地約20m2,污水水源為上海建科院莘莊園區包括環境實驗樓在內的幾棟建筑的全部建筑污水和部分幕墻測試中心的沖墻排水及雨水,設計承擔處理水量為20m3/d。
該系統的污水處理主要裝置包括調節池、ICAST反應池、二沉池、中間池、過濾柱及消毒池,ICAST反應池由兼氧區和好氧區(主曝氣區)組成,連接管道采用PVC塑料管。主要處理裝置及其材料如表1所示。
表1 主要處理構筑物及其材料
|
1.2 工藝流程
ICAST是作者基于SBR及其衍生的ICEAS、CAST/CASS/CASP處理技術發明的一種改進型的活性污泥技術。該專利技術采用靈活的運行方式,可根據實際需要自由選擇間歇式或連續式的運行方式。
工藝流程如圖2所示,生態建筑雨污水經調節池進入ICAST反應池進行生化處理。ICAST反應池可以采用間歇式和連續式兩種運行方式。考慮到維護的方便,本次設計采用連續式運行(如圖3所示)。連續運行為連續進水、連續出水,流入ICAST反應池的污水,在兼氧區與活性污泥充分混合后進入主曝氣區進行好氧分解,自然停留一段時間后溢流入二沉池,沉淀后上清液出水至中間池,處理過程中回流主曝氣區內的部分污泥至兼氧區。
這里將ICAST反應池設計分為一個較小的兼氧區和一個較大的好氧區,目的在于兼氧區不僅可有效地緩沖進水水質波動對好氧區活性污泥的沖擊,而且可起到生物選擇的作用,抑制絲狀菌生長,控制污泥膨脹。運行過程中,兼氧區還可減輕好氧區部分的有機物負荷,使殘留有機物更有效地去除。
此外,考慮到進水水質可能有較大波動,因此在原污水污染物濃度較大時可在中間池加入微量混凝劑。由中間池出水經過濾柱進行過濾,并送至清水池,消毒后的出水水質可達到中水回用標準(CJ/T 95—2000)。在處理過程中,各工藝階段的水質監測指標及其分析方法如表2所示。
表2 水質監測指標及其方法
|
采用ICAST技術對生態建筑雨污水進行處理,裝置一體化程度高,可以節省基建費用,連續式運行時,為保證在相對較短的停留時間內取得理想的處理效果,通過增設污泥回流系統,使回流混合液NH3-N在兼氧區內利用原水中的碳源反硝化,提高脫氮效果,處理量較大。
1.3 回用系統
將生態建筑雨污水經調節池處理后進入ICAST池生化處理并由過濾消毒后的出水(其水質達到中水回用標準)用于回用的系統,稱為中水回用系統,一般由管道、水泵及噴嘴等組成。中水經回用系統可用于生態建筑樓頂平臺澆灌綠化、景觀水池用水、清潔道路等。
2 自動控制及監測系統
利用上述污水回用處理裝置,在文獻[6]的基礎上,進行處理運行和監測水質的自動控制系統設計。
2.1 研究內容
a、ICAST處理流程可以通過PLC和計算機進行自動控制。包括控制進水泵、鼓風機、過濾泵、污泥回流泵等設備的啟動、運行和停止及不正常運行時的報警等。
b、監控污水回用處理的整個過程,監測進出水水質的主要指標CODcr、NH3-N及濁度;ICAST生化反應池內的DO和pH值;當各工藝階段的水質指標達不到預定目標時,可由計算機通過PLC適時調整運行參數等。
c、對污水回用處理過程中的數據進行采集和定時存貯,根據需要可查詢任意時刻各種設備的故障記錄及儀表的歷史記錄,且對歷史數據進行一定的分析。
2.2 設計原則
a、以出水水質為目標監測及控制
自控系統除了監測進、出水的水質以外,應對ICAST反應池內的DO和pH值作在線監測記錄,通過監測的數據確定反應池內生化反應條件與處理出水之間的關系,并以此為依據在自控界面上對ICAST反應池的運行和曝氣量大小進行調整,使出水水質可達到中水回用標準。
b、實用性與經濟性
自控系統采用進口和國產設備及電器結合,設計和編程考慮主要設備的自動運行,在保證可靠的前提下盡可能節約成本。通過對系統主要設備的選型,可使其造價比國內同類型系統價格有較大幅度的降低。
c、安全性與可靠性
自控系統控制部分具有故障報警及故障處理功能。從設計到設備選型和安裝施工及運行維護均應盡可能確保系統的安全可靠性。
2.3自控硬件及軟件
自動控制系統I/O量共計約38個點,目前可編程控制器(PLC)的種類有很多,如歐姆龍的CPM2A系列、西門子公司的S7200系列和S7300系列、A-B Rockwell公司及三菱公司的產品等。依據作者的選型經驗及比較各設備的特點,西門子公司和A-B公司的中小型PLC質量好,但對本系統而言價格較貴;歐姆龍公司和三菱公司的小型PLC質量及價格優勢明顯,其性價比較高,且在同行業中應用較廣泛;同時考慮到上位機組態軟件的選用,因此選用歐姆龍公司的CPM2A系列。它具有處理速度可滿足系統要求、基本指令豐富、程序易于修改、維護工作量小、網絡組態容易等特點。
監控軟件是在Delphi軟件的基礎上進行編程,該軟件可使系統維護人員在極短時間掌握,其性能在國內許多企業已經得到應用檢驗。此外,該軟件獲得技術支持容易,其性能完全滿足本系統需要,而價格卻比其它同類型軟件要低。
2.4 自控工藝
2.4.1自控工藝流程
打開計算機,進入自控檢測界面,輸入密碼及相關原始設定值,開始運行,實現過程控制自動化。
生態建筑雨污水經提升泵從集水井輸送到調節池,根據調節池中的液位信號控制開停泵的時間,調節池低位時開泵,高位時停泵。經調節池沉淀處理后出水,由進水泵輸送到ICAST生化池,進水泵根據調節池和生化池的液位信號以及設備運行狀態一同控制。經連續式ICAST處理后出水則自流至二沉池去掉細小顆粒,再溢流至中間池。中間池內蓄水由過濾泵輸送至微濾池進行過濾,過濾后出水加消毒劑送至消毒池停留一段時間即為中水。其中過濾泵靠中間池水位控制,高位開泵、低位停泵;加藥泵與過濾泵聯動。
2.4.2控制系統結構及特點
依據國內外常用的自控系統形式,本系統采用PC+PLC結構,與常規智能直接數字控制儀表相比,具有投資少,壽命長,易維護且故障率低等特點。
現場控制站主要負責所有設備和過程的數據采集控制和參數調節,由PLC完成該功能且通過PLC承擔事故預處理并與控制室計算機進行通訊。控制室可提供CRT顯示及故障報警、部分參數設置、遠程人工干預操作和數據存儲等工作。控制室通常由1臺工控機來完成,該管理機除含有現場操作功能外,還具備數據處理、報表打印等功能。
2.4.3自控系統組成及功能
根據地理位置及工藝功能劃分,本系統由控制室和現場控制站組成,控制室與處理裝置相鄰,回用系統的噴泉景觀池與住宅樓相連。本系統可通過計算機界面實現數據采集、畫面顯示、參數修改、存儲及打印等功能,具體可由4大部分組成。
a、工藝流程圖動態顯示
流程圖共5張,包括總工藝流程圖、進水部分流程圖、生化處理部分流程圖、中間池和二沉池處理部分流程圖、過濾及加藥消毒部分流程圖。這5張流程圖、管道和設備都可以動態顯示當前的工作狀態。設備故障時用聲光報警并可作適當處理。
b、實時監測和顯示有關數據
通過擴展的模擬量模塊,可將相應的儀表數據傳入上位機,在上位機上實現實時監測和顯示有關數據,包括進水的流量、進出水的CODcr、NH3-N指標值、出水的濁度值、以及ICAST反應池中的DO值和pH值。
c、設備控制及參數設定
可以在自動控制的狀態下強行控制某臺設備的開關,根據處理的要求進行多種參數的設定,同時,可根據在線監測儀器的反饋值自動調整運行參數。
d、數據采集查詢及處理
根據要求對處理過程中的數據進行采集和保存,可以查詢任意時間各種設備的故障記錄及儀表的歷史數據,提供歷史趨勢圖功能,自動生成24小時、1個月、1年的趨勢圖,同時提供數據報表功能,生成班報表和日報表。
2.5 試驗驗證
根據以上所述,作者在上海理工大學校園內,設計加工搭建了ICAST用于18高層住宅的雨污水就地回用處理的自動控制運行和監測水質的裝置系統,并經2003年6—8月3個月的調試運行,其出水水質達到中水回用標準。調試運行結果表明,該處理裝置、自動控制運行及監測水質的系統是可行的,為生態建筑雨污水回用處理系統的設計提供了可靠的依據。
3 結論
a、以出水水質達到中水回用標準為目的,設計了生態建筑雨污水回用的ICAST處理裝置系統。
b、采用在線監測儀器對出水水質、ICAST反應池內的運行條件以及系統設備的運行參數等進行監測,根據進水水質、水量和ICAST反應池內DO值,自動設定各工藝階段的運行參數,可經濟、安全、可靠地實現系統處理運行和水質監測的自動化。

使用微信“掃一掃”功能添加“谷騰環保網”