可持續發展方針促進我國高爐煤氣袋式干法除塵快速發展
1 概述
1.1 高爐煤氣是一種有回收價值的能源
高爐煤氣(簡稱BFG)是高爐冶煉過程中產生的一種副產品。正常冶煉時,噸鐵發生量約為1400~2000Nm3,壓力0.05~0.25MPa,溫度150~300℃,BFG中CO占20~30%,H2占2~5%,熱值3000~3800kJ/Nm3。含有豐富的物理能、化學能,極具回收價值。
按2006年統計,我國現有高爐1250座,年產生鐵約4億噸,其中1000m3以上為120座,產量占40%,可見中小型高爐仍占較大份額。
1.2 高爐煤氣的回收利用
我國現役高爐煤氣的發生總量約計7.0×1010Nm3/a,大都設有處理回收裝置,但回收利用率差異較大,如寶鋼等新建大高爐大于99%,包鋼等大部分中型高爐大于90%,仍有不少中小型高爐只達到70~80%。
先期建設的高爐,大都采用文氏管濕法流程將爐頂荒煤氣處理為凈煤氣,用于熱風爐等加熱設備,繼后對1000m3以上高爐開發應用爐頂煤氣余壓回收透平發電裝置(TOP GAS Pressure Recovery Turbine,簡稱TRT),利用BFG的壓力能及熱能經透平膨脹做功,帶動發電機發電,噸鐵發電量可達20~40kwh。截至2004年底我國1000m3以上高爐共97座,配置TRT的有66套。“十五”期間我國發改委《節能長期專項規劃》規定,爐頂余壓大于0.1MPa的大中型高爐均應配置TRT裝置。上世紀九十年代瑞士BBC公司研制成功高爐煤氣燃氣輪機和燃氣蒸發聯合發電機組(CCPP),進一步提高BFG的利用熱效率。2003年寶鋼建成世界上首臺燃燒低熱值高爐煤氣的大型燃氣——蒸汽聯合循環發電機組,熱電轉換效率達到45.5%。同期首套國產高爐煤氣燃氣輪機發電機組在通鋼投入運行,聯合循環熱效率達到40%。
1.3 高爐煤氣凈化的技術進步
傳統的BFG濕法凈化流程存在占地大、能耗高、凈煤氣質量差等問題。1912年德國首創BFG袋式干法除塵技術(簡稱BDC),50年代在歐美發達國家推廣應用。70年代日本住友金屬引進德國專利,與日立造船聯合進行二次開發,于1982年在小倉鋼廠1850m3高爐建成以化纖針刺氈濾袋和凈煤氣加壓反吹清灰為特征的BDC裝置,投入生產性運行,并獲得迅速推廣。據日本鋼聯對58座大中型現役高爐調查,采用全干法袋除塵的有11座,干濕兩用的有29座,兩項合計約占70%。其中不乏5000m3級的大高爐。
與以二文為特征的濕法流程相比,BDC具有多種優越性:
(1)具有高效而穩定的凈化效能,凈煤氣含塵量低于5mg/Nm3,提高BFG的品質和熱值;
(2)充分利用BFG的壓力能、熱能,提高TRT發電量30~50%;
(3)從根本上免除了瓦斯泥和污水處理的龐大設施及其對環境的污染;
(4)節地40~50%,節水80~90%,節省投資30~40%,節省運行能耗70~80%,通常在項目投運1~2年內即可回收全部投資,環境經濟效益十分顯著。
1.4 我國BDC已走上快速發展道路
我國于1974年首先在河北涉縣鐵廠13m3小高爐上嘗試應用玻纖濾袋反吹風除塵技術,并逐步在300 m3以下小高爐上推廣。1984年作為國家重點節能項目,由太鋼引進日本住友技術,在1200m3高爐實施BFG袋式干法除塵技術的研究攻關,從1987年8月建成投入試運行,歷時十多年不懈探索、不斷改進,于1998年7月實現全干法正常運行,為我國BFG—BDC向中型高爐發展積累了有益的經驗。
1990年我國自行研制開發的化纖濾袋脈沖袋式除塵器應用在淮南鋼廠75m3小高爐上獲得成功。用高壓氮氣脈沖清灰代替凈煤氣加壓反吹清灰,克服了BDC引進技術的清灰不足和缺陷,是我國BDC技術的一大進步,并迅速在一大批中小型高爐推廣運用。2004年8月鋼鐵協會在濟南召開全國高爐煤氣全干法除塵技術推廣研討會,積極推動“新型干法”由小高爐向中大型高爐發展,在本年度就有重鋼、天管750、首鋼、阜寧1260、萊鋼1880等高爐的全干法除塵系統投入運行。
進入新世紀我國政府把“發展循環經濟、保護生態環境、加快建設資源節約型、環境友好型社會,實現可持續發展”作為指導方針。中國鋼協把高爐煤氣干法除塵列為冶金工業“三干一電”工藝技術首推項目。這股強勁的東風,推動了我國高爐煤氣袋式干法除塵的快速發展,先后涌現了通鋼、承鋼、韶鋼、萊鋼、包鋼等一批高爐煤氣全部實現BDC的先進企業。繼2004年萊鋼1880、韶鋼2500高爐改造成功,2006年包鋼與有關單位合作開發應用大筒體及氣力輸灰等新技術,將六座高爐(1800~2500m3)全部改為BDC,在規模和技術上取得雙突破。2007年唐鋼、武鋼、漣鋼等一批3200高爐正在實施BFG-BDC,并且首鋼曹妃甸新建5500高爐,寶鋼一號高爐(5000m3)大修工程都已確認采用BDC技術方案。
2 BDC核心技術
BFG是高溫、高壓、可燃、易爆、有毒氣體,并且其參數是隨冶煉工況而波動的。BFG除塵裝置本身作為高爐冶煉工藝的有機組成部分,講究運行的可靠性、穩定性。因此與環境除塵設備相比,在其設計、制造、配件選用及運行控制環節有其特殊要求。整個BDC工藝可拆解為參數調制、除塵凈化、卸灰輸灰、安全監控等項核心技術。
2.1 荒煤氣參數調制
2.1.1荒煤氣降溫處理
高爐正常冶煉時,爐頂出口煤氣溫度150~250℃,按此進行除塵器的結構設計及濾料選配。但在高爐非正常工況,尤其在發生崩料、坐料時,短時間可上升到400~500℃,甚至600℃,需要進行降溫及控溫處理。
降溫方法有間接換熱冷卻和直接噴霧冷卻兩大類。間接冷卻又由殼管式水冷、熱管及機力空冷等形式。間接水冷方式存在熱惰性大、易腐蝕損漏、耗水量大等缺點。而直接噴霧冷卻具有反應迅速、控制方便、節水節能等特點。經過十多年工程實踐,隨著噴霧技術的不斷提高與完善,逐步形成了以直接噴霧冷卻為主、以間接機力空冷為輔的技術方針。對300~500℃的高溫工況采用一次噴霧冷卻,將荒煤氣溫度直接降到260℃;對450~600℃的超高溫工況,為防止煤氣含濕量過大,在噴霧冷卻同時輔以機力空冷。
噴霧冷卻技術的關鍵是霧化與控制,要求霧滴微細分布均布。早先開發的是單相高壓回流噴嘴,供水壓力3~4MPa,依靠高壓及小孔實現霧滴微細化,依靠回流水調節實現溫度控制,這種噴嘴存在能耗大、噴孔易磨易堵等問題。繼后開發兩相噴嘴,利用氣體動力霧化水,實現霧滴超微細化,供氣、供水壓力只需0.4~0.6MPa,結構形式多種多樣。在高爐煤氣冷卻領域應用比較廣泛而成功的是斯普瑞公司的FloMax-FM型噴嘴及其AutoJet控制器。
這套裝置具有以下特點:
(1)噴嘴采用獨特的導流環、靶釘和空氣帽的三級霧化技術,達到超細霧化(d32<100um,dmax<200um),有利于快速汽化蒸發(<5S);
(2)單個噴嘴霧化量及可調范圍大(0.1~15t/h),射程長(4~12m),霧滴覆蓋范圍大(直徑1~3.8m),有利于減少噴嘴量;
(3)可以在較低氣壓(0.2~0.3MPa)和較低水壓(0.2~0.5MPa)條件下實現微細霧化,同時大幅度減少煤氣體積,具有顯著的節水(90%)、節電(20~30%)和綜合節能效果;
(4)可確保在煤氣溫度降至140~150℃時不濕底(即不凝析機械水),同時具有降低比電阻,促使細粒塵凝聚沉降的功能;
(5)噴嘴選用優質耐磨料精密制造,孔徑大(5~10um),并實行自動定期吹掃,確保噴嘴不易磨損、結垢堵塞,并且對噴霧水沒有特殊水質要求(用一般工業水,甚至江河水即可)。
(6)配有專有控制系統,布設多個測溫探頭(熱電偶),噴嘴分組控制,確保安全、可靠穩定運行。
FM25A霧化噴嘴的特性參數如圖1所示。
![]() |
圖1 FM25A霧化噴嘴性能曲線 (壓氣4.14bar)
荒煤氣的蒸發冷卻又有爐頂噴霧、重力除塵器噴霧和專用噴霧塔等形式。工程實踐表明:爐頂噴霧冷卻是一種最為合理而有效的冷卻方式,用兩相噴嘴微細噴霧代替常規的爐頂打水,在同樣達到保護爐頂設備的同時,將荒煤氣溫度降至300℃左右,顯著減少煤氣中的機械水,滿足袋式除塵要求,同時大量節省爐頂冷卻水,有利于高爐安全生產。當爐頂噴霧難以實施,或者尚不能滿足降溫要求時,可在重力除塵器筒體內增設霧化噴嘴。重力除塵器內噴霧,同時可以促進細粒塵凝聚,提高重力除塵效率。當上述兩種方式都難以實施時,可以設計專用的噴霧冷卻塔。
機力空冷器是在自然空冷器的基礎上進化而成,分為管式與板式兩種基本結構形式。板式機力空冷器結構設計合理,綜合性能優良,應用日趨廣泛,具有以下特點。
(1)用δ3鉬鋼板組合隔縱橫通道,縱向走熱煙氣,橫向走冷空氣,與管式相比,改善了換熱邊界條件,并具自振清灰功能;
(2)用空氣作為冷卻介質,借助多臺風扇的組合鼓風效應,提高換熱性能,傳熱系數可達16~25W/m2.K,并便于控制煙氣終態溫度;
(3)空冷器頂部配設聲波清灰器,實現定周期自動清灰,確保空冷器穩定低阻運行(△H≤1000Pa);
(4)機力空冷器不會增加煙氣含濕量,適宜用作袋式除塵器入口高溫煙氣(450~300℃)的末端冷卻裝置。
2.1.2荒煤氣低溫對策
高爐在點火開爐時有個升溫過程,爐氣溫度低于100℃,且含濕量較大,在休風時爐氣溫度也會降至100℃以下。在這類非正常冶煉工況條件下,可能會使袋式除塵器引起低溫結露,須采取相應對策。
(1)采用直接摻混高溫氣體或換熱器間接加熱方式,使爐氣溫度升至100℃以上,斯普端公司正在開發利用爐頂噴霧冷卻噴嘴作為燒嘴直接燃燒升溫的技術,一套裝置即可降溫,又可升溫,是比較合理的;
(2)除塵器選用耐水解性纖維(PPS、PTFE、GL等)制織的濾料,表面再進行拒水防油處理,用以裝備若干個箱體,專門用于非正常低溫高溫工況;
(3)在開爐或休風時,在濾袋表面預噴干燥滑爽塵(煤粉、焦粉等)加以保護,避免出現糊袋;
為安全穩妥起見,對于原已建有濕法凈化裝置的改造項目,在干法除塵改造方案中,可以暫時保留濕法流程,經過一段時間摸索,積累運行經驗后,再切除濕法裝置。
2.1.3荒煤氣預除塵措施
高爐荒煤氣初始含塵量可達30g/Nm3,并攜帶灼熱的鐵、渣塵粒,宜采取預除塵措施。
通常先設一道重力除塵,除去灼熱的粗粒塵(≥20~30um)。出口含塵濃度降至6~12g/Nm3,避免下一級袋式除塵器燒灼濾袋,并減輕除塵負荷,這是十分合理的配置。有些工程在重力除塵器后再加一級旋風除塵,意在進一步減輕濾袋負荷和閥門磨損,事實證明收效不大,沒有推廣價值。
2.2 袋式除塵凈化技術
針對高爐的冶煉工藝和煤氣特性,我國已經開發成功適用于高爐煤氣干法除塵的袋式除塵成套技術及其系列產品。
2.2.1脈沖清灰袋式除塵技術
德國早期開發,以后日本移植并推廣應用的BFG袋式除塵器都屬于內濾反吹清灰型。我國最早在小高爐上使用,包括1984年太鋼從日本引進的也是這種類型。反吹風型袋式除塵器存在清灰能力弱、運行阻力高、體積龐大、故障因素多、運行能耗高等弱點。1990年我國首先在淮鋼75m3高爐煤氣干法除塵項目使用外濾脈沖清灰型袋式除塵器獲得成功。除了從根本上克服了內濾反吹風除塵器存在的諸多問題外,還有利于提高過濾速度(從0.5m/min提到0.8m/min),開創了高爐煤氣干法除塵的新局面,之后沿襲這一技術路線,不斷地改進完善,在大中型高爐推廣應用。
隨著高爐的大型化,帶來除塵器筒體的大型化(從φ3.2m到φ6.0m)和濾袋規格的長袋化(從4.8m到8.0m),并催生了導流噴嘴、雙向脈沖噴吹、分節袋籠、無障礙換袋等多項專利技術,使之能夠完全適應大型高爐煤氣袋式干法除塵的要求。脈沖袋式除塵器單元筒體結構如圖2所示。
![]() 1.荒煤氣出口主管;2.煤氣蝶閥;3.盲板閥;4.箱體煤氣放散系統;5.中間灰斗放散系統;6.泄爆閥;7.噴吹系統;8.花板;9.濾袋組件;10.箱體;11.蒸汽加熱系統;12.卸灰閥組;13.中間灰斗;14.輸灰系統. 圖2 脈沖袋式除塵器單元筒體 |
2.2.2混合纖維型特種功能濾料
高爐煤氣對除塵濾料的基本要求:在正常工況條件下要求耐溫性好(250~300℃);在非正常工況條件下還要求耐濕性好(在<100℃時不發生糊袋水解)。對濾料材質的選用經歷了玻璃纖維、芳族聚酰胺(Nomex)、聚酰亞胺(P84)、聚四氟乙烯(PTFE)及其混合纖維的進化過程。工程應用表明:以聚酰亞胺和超細玻纖為原料采用特殊工藝制成的混合針刺氈是當前高爐煤氣袋式干法除塵的首選濾料。我國的商品名為萊氟RZMS-Ⅱ型、FMS®9806、PUNATE®CPD002。這種混合纖維針刺氈的基布為玻纖,絮棉層為兩種纖維混合料,表面用PTFE滲膜處理,兩種材質揚長避短,具有最佳的綜合性能。
(1)利用P84纖維斷面異形(葉瓣形),表現面積大的特點與圓形斷面的光滑玻纖抱合良好,具有高效低阻過濾性能,出口含塵濃度可達5mg/Nm3以下;
(2)P84和玻纖均有良好的耐熱性能,混合針刺氈的連續使用溫度可達260℃,瞬間耐溫300℃;
(3)利用玻纖基布高強低伸以及P84纖維耐磨抗折的綜合特性,混合針刺氈具有優良的機械力學性能,正常使用壽命可達3~4年;
(4)P84纖維是至今唯一進口的高價原料,而超細玻纖可立足國產,價格低廉,兩種纖維按適量比例混合可以大幅度降低原料成本,成為性價比優良的特種功能除塵濾料。
2.3 卸灰輸灰技術
高爐煤氣袋式除塵器各筒體灰斗收集的粉塵,由卸灰、輸灰裝置轉運到貯灰倉,集中外排,基本要求是定時定量確保密封。
2.3.1零泄漏串級卸灰裝置
各除塵筒體灰斗出口的卸灰裝置由上球閥、偏置式鐘形罩、下球閥以及破拱裝置、料位計等組成,通過自控程序動作,實現定量、定料位、無泄漏卸灰。
2.3.2正壓式氣力輸灰裝置
我國早期實施的中小型高爐煤氣除塵系統大都采用常規的機械輸灰方式(由刮板輸送機、斗式提升機等組成),隨著煤氣除塵系統的大型化,逐漸暴露機械輸灰裝置體積龐大、故障率高、氣密性差、輸送距離及提升高度受限的弊端。近期開發成功正壓氣力輸灰技術,與傳統機械輸灰方式相比具有較多優越性:
(1)擁有常規氣力輸灰方式固有的優點,裝置體積小、氣密性好、輸送路徑不受限制;
(2)按正壓中相輸灰原理設計,輸灰量大、耗氣量小、輸送距離長、輸灰管路不易磨損;
(3)利用除塵器出口凈煤氣余壓作為輸灰動力,輸灰尾氣經二次過濾后重返凈煤氣管,入柜回收,最為節能環保;
(4)輸灰管路及防磨措施設計、輸灰參數及程序的調控操作是高爐煤氣除塵氣力輸灰裝置得以正常運行的關鍵。
2.3.3密閉輸灰罐車
怎樣避免貯灰倉收下塵外運過程中產生二次污染?自從寶鋼工程引進日本吸引壓送罐車密閉輸灰技術,經過二十年實踐,一致認為這是一種最適宜的粉料外運方式。至今我國已實現輸灰罐車國產化,并大量推廣應用。在具體用于高爐煤氣干法除塵輸灰的實踐中又有創新和發展。
(1)為避免罐車直接從貯灰倉外排灰時煤氣隨之溢出,而在大貯灰倉下設容量約15m3的轉運小灰罐,外排灰作業時先打開大灰倉卸灰閥,待裝滿小灰罐后,關閉大灰倉卸灰閥,再打開小灰罐卸灰閥開始外排灰,裝入罐車。采用這一技術同樣可以實現對重力除塵器收下塵采用罐車“外排灰”作業。
(2)將罐車常規使用的吸入壓出方式,改為雙壓送方式,有利于加快罐車受料速度(可提高一倍),減緩軟管磨損、節省能耗和資材。同時雙壓送罐車因省卻了真空泵和發動機等動力設備,體積和車價大幅度減少。圖3為雙壓送罐車受料作業系統圖。
(3)當高爐煤氣除塵灰中含有鈉、鉀等輕金屬元素時,遇空氣會自燃,曾發生罐車及管路密封件燒毀等事故。此時可采用工廠氮氣源替代罐車空壓機實現壓送受料,或在罐車采用自備氣源壓送的同時,在始端接入工廠氮氣助推防燃。
![]() |
圖3 雙壓送罐車受料作業系統圖
2.4 安全防范及監控技術
高爐煤氣袋式干法除塵裝置必須充分考慮高爐煤氣高壓、有毒、可燃、易爆等特性,采取妥善的安全防范及監控措施。
2.4.1除塵箱體設計
采用鋼制圓筒形箱體,按GB150《鋼制壓力容器》標準設計。上端橢圓形封頭壓制成形,下端圓錐形灰斗傾角大于65度,接口采用自動埋焊焊接,并進行探傷檢測,整體做耐壓氣密性試驗。
2.4.2導流均布裝置
高爐煤氣從下部進入筒體,要求斷面氣流均勻平穩,成層流狀,切忌形成偏流、渦流。為此宜配設合理的導流均布裝置:
(1)入口做擴散管,降低進口流速,并設導流擋板,改變入口氣流方向;
(2)在筒體入口上部設均流整流柵板,形成向上均布氣流;
(3)在柵板與袋底之間留出一定空間,進一步均壓穩流,避免塵氣對濾袋的局部沖刷磨損。
2.4.3泄爆放散裝置
在每個除塵筒體頂上設超壓泄爆放散裝置一套,有自閉式膜片泄爆閥組,放散管和氣體取樣檢測口等組成。泄爆閥能自動復位,防止煤氣大量外溢。通過取樣口檢測分析,判斷泄爆閥是否泄漏。
2.4.4充氮置換放散裝置
為適應在線檢修的要求,在每個筒體設充氮置換放散裝置一套。在筒體頂上設放散球閥、放散管和氣體取樣檢測口,放散管底部設氮氣引射器,同時在筒體的中下部設充氮噴嘴,下推上引,加速煤氣安全放散。最后在取樣口檢測分析,判斷是否達到人體安全作業要求。
2.4.5濾袋檢漏報警裝置
在每一除塵筒體出口配設粉塵濃度在線檢測儀,檢測信號傳送值班室儀表盤顯示,并進行破袋故障報警。
2.4.6筒體伴熱保溫措施
為防止除塵器收下塵在界壁冷卻、結露受潮,影響正常卸灰,在除塵器和貯灰倉的下部筒體和灰斗外壁采用超細玻纖氈保溫。在灰斗部位壁面還需布設蒸汽伴熱管,保溫層外包鍍鋅鐵皮防護。
2.5高爐冶煉工藝及操作技術
高爐煤氣干法除塵對高爐冶煉工藝及操作技術提出了更嚴格要求:冶煉工藝力求穩定,爐頂壓力適當提高。相對而言大高爐比小高爐有利。我國冶金企業已在實踐中摸索總結了一整套成熟經驗。
2.5.1穩定運行工況
吃精料,抓混勻,提高原、燃料供配穩定性和裝料的均勻準確性,穩定爐內熱力制度和造渣制度,從而穩定爐頂煤氣參數。
2.5.2提高爐頂壓力
改進爐頂設備,采用無料鐘、高風溫、富氧大噴煤等先進技術,提高冶煉強度和爐頂壓力,穩定爐內工況。
2.5.3加強操作管理
嚴格制訂操作規程,推行標準化作業方法,提高設備完好率,降低設備休風率,穩定操作制度,延長爐役壽命。
3 工程業績與實例
3.1 工程業績
從2003年開始我國高爐煤氣袋式除塵技術向中大型高爐推廣應用。據不完全統計,至今有38座1000m3以上的高爐已經建成或正在實施煤氣干法除塵流程。在萊鋼、包鋼等先進企業帶動下,各家鋼鐵集團都已開始行動,詳見附表1。
呈現以上特色:
(1)除先期建設的太鋼3#、濰坊1080等高爐仍采用反吹風袋式除塵器外,都采用我國自主開發的氮氣脈沖清灰袋式除塵器;
(2)與高爐大型化相適應,除塵器筒體由Φ3.2m加大到Φ6.0m,濾袋長度由4.8m加長到8.0m,脈沖噴吹由單噴發展到雙噴;
(3)濾袋材質由芳族聚酰胺(Nomex)進化為聚酰亞胺(P84)和超細玻纖(GL)混合,濾料的工藝水平、產品質量以及耐溫、耐濕性能大幅度提高,在正常爐況條件下的使用壽命可達2~3年;
(4)突破原有機械輸灰的傳統模式,開發成功更為緊湊、便捷、節能、安全的氣力輸灰方式,已在十多個工程中推廣應用。
(5)脈沖清灰袋式除塵器的運行阻力可以控制在1.5~2.0KPa,凈煤氣含塵濃度小于5mg/Nm3,TRT發電量增加30~50%,具有良好的節能環保效益;
(6)與傳統的濕法凈化流程相比,新建項目的一次投資節約30~40%,改造項目的全部投資約在1~2年即可全部回收,具有可觀的經濟效益。
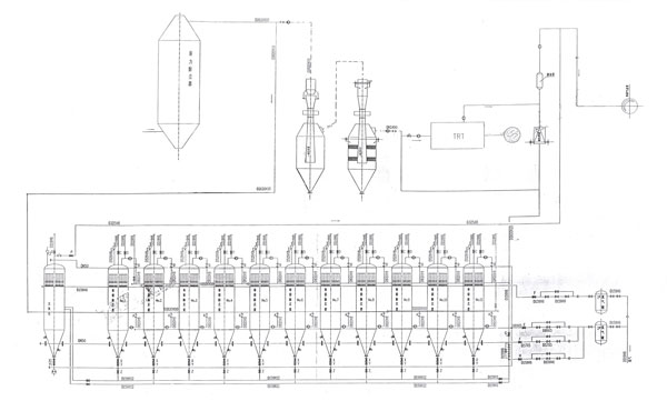
3.2 工程實例—寶鋼不銹鋼2500m3高爐改造工程
3.2.1概況
高爐工藝參數:
(1)高爐容積:2500 m3;
(2)煤氣發生量:(正常)42×104 Nm3/h,(最大)46×104 Nm3/h;
(3)爐頂煤氣壓力:(正常)0.184 MPa,(最高)0.25 MPa;
(4)重力除塵器后煤氣溫度:(正常)100~150 ℃,(最高)320 ℃;
(5)重力除塵器后煤氣含塵濃度:6~10 g/Nm3;
原建有重力+雙文濕法凈化系統和TRT發電裝置。
2006年立項改造,采用脈沖清灰袋式除塵技術和全干法流程,2007年12月竣工投運,改造總投資6000萬元。
3.2.2干法除塵工藝流程
保留原有重力除塵器及上游煤氣管路,切除文氏管除塵器及連接管路,在重力除塵器后增設旋風除塵器和袋式除塵器,確保凈煤氣含塵濃度小于5mg/Nm3。詳見圖4。
![]() |
圖4 干法袋式除塵工藝流程
3.2.3主要設備選型設計
(1)袋式除塵器
選用圓筒形長袋低壓脈沖袋式除塵器,Φ5.2m×11個筒體雙排布置。濾袋規格Φ130×7500,材質P84+超細玻纖混合針刺氈,過濾面積13342m2,過濾速度0.33~0.41m/min,配3〃淹沒式氮噴脈沖閥,筒體進出口設截止閥和調節蝶閥控制,灰斗出口設雙重球閥和鐘形閥控制。
(2)輸灰設備
設計Φ5.2貯灰倉1個,上部配設尾氣凈化裝置,采用Φ130×2000濾袋,氮氣脈沖噴吹清灰。
開發氣力輸灰裝置一套,見圖8。在正常工況條件下,利用凈煤氣余壓作為氣力輸灰動力,貯灰倉尾氣經袋濾凈化后,返回凈煤氣管路回收。在事故狀態備用氮氣源輸灰。
采用罐車外排灰,每天收塵量約75噸。
(3)電儀控制
①荒煤氣溫度控制,當爐頂出口煤氣溫度≥320℃時,啟動爐頂打水降溫至250℃;
②除塵器清灰控制,以定時為主結合定阻力控制;
③除塵器輸灰控制,以定時為主結合定料位控制;
④除塵器濾袋檢漏控制,在每一筒體出口設粉塵濃度檢測儀,實現自動報警及切換控制;
⑤除塵器及貯灰倉泄爆控制,在頂部設超壓泄爆閥及放散管,實現自動泄爆放散。
3.2.4實時運行參數記錄
(1)除塵器入口荒煤氣參數:煤氣量46×104Nm3/h,煤氣溫度150℃,煤氣壓力0.176MPa。
(2)除塵器運行阻力1.27~1.5KPa。
(3)除塵器出口凈煤氣含塵濃度1.2~3.0mg/Nm3。
4 善后和展望
我國高爐煤袋式干法除塵技術的推廣應用走過了沖破傳統習慣勢力的束縛以及周密技術準備的艱難里程,至今總算邁出了可喜的一步。但也不能說十分順暢完善,在技術層面上還有不少問題,需要繼續深化、研究開發、總結提高。
4.1 善后研發
4.1.1低溫高濕爐氣的預處理
實踐得真知,對袋式除塵而言,在某種程度上,高爐爐氣的低溫比高溫更顯麻煩。在開爐階段以及休風后復風時,爐氣有個升溫過程(通常至100℃,開爐需幾小時至十幾小時,復風需一小時左右)。此時濕度較大,低溫高濕爐氣直接進入袋式除塵器,會引起積露糊袋。本文2.2.2節已綜述可以采取的多種處理對策。其中利用爐頂噴霧冷卻噴嘴作為燃油燒嘴直接燃燒升溫的技術,應是今后發展方向。有待進一步試驗研究,加快投入正產性應用。
4.1.2設計濾速的合理確定
不可否認,現已建成的高爐煤氣袋式除塵裝置,選用設計濾速偏低。即使脈沖類袋式除塵器,選用過濾速度大都小于0.5m/min,比環保用除塵器低的多。主要出于以下考慮:一是高爐煤氣用除塵器屬于工藝設備,追求安全可靠順行,為適應特殊工況要求,如開爐時低溫高濕,故障時低壓以及除塵器本身的停室檢修作業,在設計時,留有適量的備用筒體,譬如韶鋼3#爐28個筒體中留有30%;二是追求低壓降,將除塵器節省下來的煤氣壓力能,用于增加TRT發電量。
應該說這是現階段的權益之計。下一步宜深入研究噴吹系統,優化清灰裝置結構參數設計,增強清灰再生效果。從而合理提高過濾風速,減少筒體數量,追求濾速與阻損的最佳結合點。
4.1.3筒體大型化的延伸問題
除塵筒體大型化是高爐主體大型化的必然趨勢。但筒體大型化后又帶來一系列新問題,需要進一步研究探索:
(1)大筒體內合理的氣流分布設計,使過濾段處于穩定而均勻的層流狀態;
(2)濾袋的合理長度以其分節袋籠連接方式,濾袋末端防磨保護措施;
(3)大筒體帶來制作、檢驗、運輸、安裝等方面的新問題,新思路。
4.1.4配套件的國產化、精細化
(1)至今脈沖閥、粉塵濃度檢測儀等配套件主要依靠國外進口。應加快國產化步伐,在技術性能和使用壽命基本相當的前提下,應優先選用國產配套件。
(2)目前基本上都使用P84+超細玻纖混合針刺氈濾料,品種比較單一,低溫耐濕性能尚不理想。宜擴充PTFE纖維類產品,改善耐濕耐腐性能,增加選擇性。
(3)各種閥門在高爐煤氣除塵項目中數量多,投資大。目前基本上都選用通用閥門廠產品。花錢多,而有些閥門的性能卻得不到保證,成為系統的一大故障點。有條件的除塵設備廠宜針對高爐煤氣的要求和設備自身的特點,進行專業化研制,采取切實有效的措施,妥善解決防磨、防腐及密封問題。
4.2 展望前景
我國高爐煤氣干法除塵處于起步階段,數百立米的小型高爐起步較早,也只有覆蓋60%左右,并且裝備水平不高,運行效果參差不齊;在1000m3以上中大型高爐推廣應用也只有4~5年歷史,至今已經建成或正在建設的38座,也只占該型級高爐的30%左右。
在國家“節能減排”及鋼協“三干一電”鐵碗政令的驅使下,一批鋼鐵企業紛紛立項改造現有高爐煤氣濕法除塵系統。國家“優勝劣汰,宏觀調控”方針又促使一些老弱企業拆小建大、等量置換,與改建高爐同時建設新一代袋式除塵裝置。在出口援建項目中,也帶來將我國自主開發的高爐煤氣袋式除塵技術與設備成套出口的機遇。可以展望,未來十年,是我國高爐煤氣袋式干法除塵事業走向輝煌的十年。
附表1 我國1000m3以上高爐煤氣袋式干法除塵一覽表
|

使用微信“掃一掃”功能添加“谷騰環保網”